
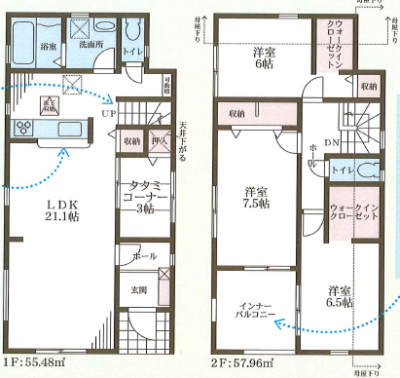
見学可能物件
施工途中物件
EVENT
view more毎月の家賃で家を買う
LocoHomeのローコスト住宅
毎月の家賃で家を買う
LocoHomeでは、新築だけではなく中古戸建、中古マンションも多数取り扱っております。
新着物件
店舗案内
access
神戸 垂水店
0120-938-389
〒655-0015 兵庫県神戸市垂水区野田通6-13
バス「野田通」停 徒歩1分
TEL : 078-708-5554
10:00 ~ 19:00
毎週火曜・水曜
店舗前の6台
メディア露出
media





























すべての物件を見る









すべての物件を見る








-1-400x200.jpg)































