ヒルトップコートジェームス山 9階部分
価格
2,580
万円
毎月
69,243
円
頭金・ボーナス0円 35年間
※返済例は変動金利0.697%にて計算
物件写真
価格
2,580
万円
毎月
69,243
円
頭金・ボーナス0円 35年間
※返済例は変動金利0.697%にて計算
- 【海一望×52㎡ルーフバルコニー付角部屋】非日常の開放感ある暮らし
- 東南角部屋で日当たり良好、明るい毎日を実現。、ペット飼育可能(規約あり)
- イオン徒歩3分で日々の買い物が圧倒的に便利 、バス停徒歩1分で通勤通学もスムーズに移動可能
- 乙木小学校・塩屋中学校(徒歩7分)
基本情報
価格
2,580
万円
毎月
69,243
円
頭金・ボーナス0円 35年間
※返済例は変動金利0.697%にて計算
-
マンション名
ヒルトップコートジェームス山
-
所在地
神戸市垂水区青山台8丁目
-
部屋
9階部分
-
交通
JR「垂水」駅 バス12分 「松風台」停 徒歩1分
-
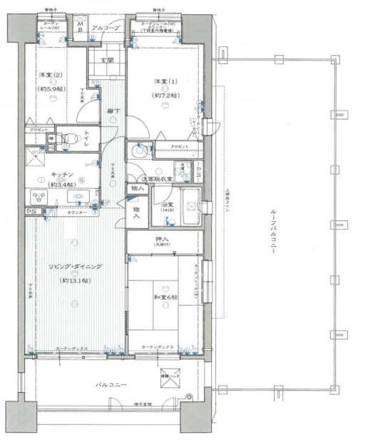
専有面積
77.64㎡
-
バルコニー面積
52.87㎡
-
その他面積
-
管理費
10,200円
-
修繕積立金
25,980円
-
その他費用
バルコニー使用料:100円/月額
-
土地権利
所有権
-
地目
宅地
-
建ぺい率・容積率
% / %
-
構造
鉄筋コンクリート造地下1階付14階建
-
管理形態
全部委託(日勤)
-
築年月
1998年6月
-
現況
居住中
-
間取り
3LDK
-
インフラ
公共上下水・関西電力・都市ガス
-
設備
カウンターキッチン・システムキッチン・浴室乾燥機・温水洗浄便座・閑静な住宅街
-
取引態様
仲介
-
備考
-
情報更新日
2026年3月23日
関連物件
「中古マンション」で探す
「垂水区」で探す
LocoClub
限定公開の物件情報をお届け
LocoClubでは、登録してくださった方限定でネットに掲載出来ない非公開物件を公開しております。
物件は毎日更新中。
非公開物件の他にも、インスタライブなどのイベント情報も配信しております。
LINE友だち追加するだけの簡単登録です。






















































