加古川市別府町新野辺第23 3号棟 新築戸建
価格
2,780
万円
毎月
74,611
円
頭金・ボーナス0円 35年間
※返済例は変動金利0.697%にて計算
物件写真
価格
2,780
万円
毎月
74,611
円
頭金・ボーナス0円 35年間
※返済例は変動金利0.697%にて計算
- 【小学校徒歩7分の安心子育て街区】 家賃並みで叶う広々4LDK新築
- 別府小学校徒歩7分。子どもが安心して通える距離の子育て環境。
- 全棟3LDK〜4SLDKのゆとり設計。子ども部屋・在宅ワーク・収納スペースまでしっかり確保できる
- 駐車並列2台 別府小学校(徒歩7分)・別府中学校
基本情報
価格
2,780
万円
毎月
74,611
円
頭金・ボーナス0円 35年間
※返済例は変動金利0.697%にて計算
-
所在地
加古川市別府町新野辺
-
交通
山陽電鉄本線「別府」駅 徒歩14分
-
土地面積
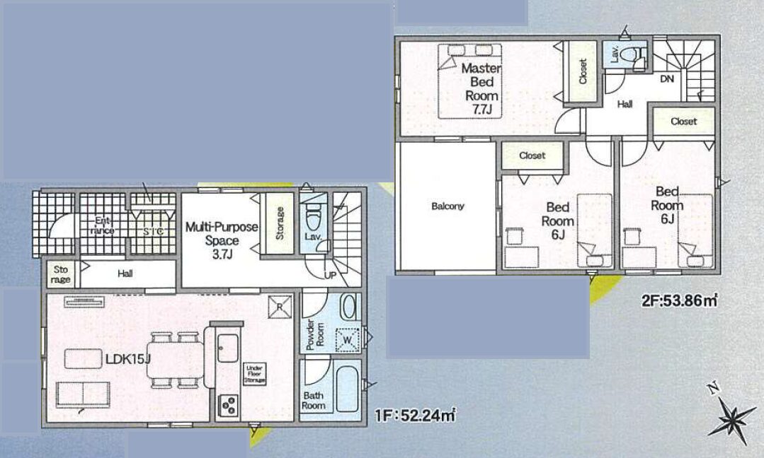
152.29㎡
-
建物面積
102.06㎡
-
地目
宅地
-
用途地域
第一種中高層住居専用地域
-
道路
北西側3.38m幅
-
建ぺい率・容積率
60% / 200%
-
私道負担
23.01m²
-
構造
木造2階建
-
築年月
2026年3月
-
建築確認番号
第R07SHC124311号
-
現況
未完成
-
間取り
4LDK
-
インフラ
公共上下水・オール電化
-
設備
カウンターキッチン・システムキッチン・浴室乾燥機・温水洗浄便座・全居室収納・納戸・小学校が近い・閑静な住宅街・角地
-
取引態様
仲介
-
備考
-
情報更新日
2026年3月15日
関連物件
「新築戸建」で探す
「加古川」で探す
LocoClub
限定公開の物件情報をお届け
LocoClubでは、登録してくださった方限定でネットに掲載出来ない非公開物件を公開しております。
物件は毎日更新中。
非公開物件の他にも、インスタライブなどのイベント情報も配信しております。
LINE友だち追加するだけの簡単登録です。





















































































