加古郡稲美町国北2丁目 未入居物件
価格
3,900
万円
毎月
104,670
円
頭金・ボーナス0円 35年間
※返済例は変動金利0.697%にて計算
物件写真
価格
3,900
万円
毎月
104,670
円
頭金・ボーナス0円 35年間
※返済例は変動金利0.697%にて計算
- 【オール電化】ワンランク上の贅沢を一生の暮らしに
- デザイン×機能×コスト!売却型★等身大モデルハウス
- 高気密高断熱で温度差が少なく、夏も冬も快適!
- 天満小学校徒歩6分・稲美北中学校
基本情報
価格
3,900
万円
毎月
104,670
円
頭金・ボーナス0円 35年間
※返済例は変動金利0.697%にて計算
-
所在地
加古郡稲美町国北2丁目
-
交通
JR「土山」駅バス14分バス停「国安団地前」停歩8分
-
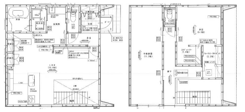
土地面積
158.26㎡
-
建物面積
100.50㎡
-
地目
宅地
-
用途地域
第一種低層住居専用地域
-
道路
北側幅6.0m・東側幅6.0m
-
建ぺい率・容積率
50% / 100%
-
私道負担
なし
-
構造
木造2階建
-
築年月
2023年10月
-
現況
空家
-
間取り
2LDK
-
インフラ
公共上下水・オール電化
-
設備
太陽光発電システム・IHクッキングヒーター・小学校が近い・角地
-
取引態様
仲介
-
備考
オール電化、公営水道、公共下水
太陽光
・長期優良住宅
・水道分担金(192,500円)
・下水道受益者負担金(58,881円)
・水源開発負担金(200,000円)
天満幼稚園
徒歩約10分
天満小学校
徒歩約6分
稲美北中学校
徒歩約29分
稲美町役場
徒歩約12分
上垣内科クリニック
徒歩約2分
Aコープフーディーズいなみ
徒歩約5分 -
情報更新日
2025年12月6日
関連物件
「中古戸建」で探す
「稲美町」で探す
LocoClub
限定公開の物件情報をお届け
LocoClubでは、登録してくださった方限定でネットに掲載出来ない非公開物件を公開しております。
物件は毎日更新中。
非公開物件の他にも、インスタライブなどのイベント情報も配信しております。
LINE友だち追加するだけの簡単登録です。




























































































