明石市魚住町西岡22期 新築戸建
価格
3,280
万円
毎月
90,239
円
頭金・ボーナス0円 35年間
※返済例は変動金利0.845%にて計算
物件写真
価格
3,280
万円
毎月
90,239
円
頭金・ボーナス0円 35年間
※返済例は変動金利0.845%にて計算
- 【2面道路】前道も広く、広々とした空間
- 山陽電鉄本線「東二見」駅まで徒歩13分、スーパーやコンビニも徒歩圏内
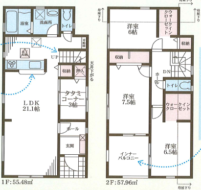
- LDK17帖、全居室収納あり、WIC付き、主寝室7.8帖、南向きバルコニー
- 駐車並列2台(前道6m) 錦浦小学校・魚住中学校
基本情報
価格
3,280
万円
毎月
90,239
円
頭金・ボーナス0円 35年間
※返済例は変動金利0.845%にて計算
-
所在地
明石市魚住町西岡
-
交通
山陽電鉄本線「東二見」駅 徒歩13分
-
土地面積
112.57㎡
-
建物面積
95.84㎡
-
地目
宅地
-
用途地域
第一種住居地域
-
道路
北側6m幅、南側4.9m幅
-
建ぺい率・容積率
60% / 200%
-
私道負担
なし
-
構造
木造2階建
-
築年月
2026年5月
-
建築確認番号
第R07SHC120105号
-
現況
未完成
-
間取り
3LDK
-
インフラ
公共上下水・関西電力・都市ガス
-
設備
カウンターキッチン・システムキッチン・浴室乾燥機・温水洗浄便座・ウォークインクロゼット・リビング収納・全居室収納・閑静な住宅街・長期優良住宅認定物件
-
取引態様
仲介
-
備考
-
情報更新日
2026年4月9日
関連物件
「新築戸建」で探す
「魚住」で探す
LocoClub
限定公開の物件情報をお届け
LocoClubでは、登録してくださった方限定でネットに掲載出来ない非公開物件を公開しております。
物件は毎日更新中。
非公開物件の他にも、インスタライブなどのイベント情報も配信しております。
LINE友だち追加するだけの簡単登録です。






























































































