神戸市垂水区多聞台1丁目 中古戸建
価格
1,780
万円
毎月
47,772
円
頭金・ボーナス0円 35年間
※返済例は変動金利0.697%にて計算
物件写真
価格
1,780
万円
毎月
47,772
円
頭金・ボーナス0円 35年間
※返済例は変動金利0.697%にて計算
- 【無駄が嫌いなあなたへおススメ】1780万円でリフォーム済みの物件!!
- 内装も外装も充実のリフォーム内容、間取りも和室→洋室!
- 最寄りバス停まで徒歩3分、閑静な住宅街で近隣商業施設もあり
- 駐車1台 多聞台小学校・神陵台中学校
基本情報
価格
1,780
万円
毎月
47,772
円
頭金・ボーナス0円 35年間
※返済例は変動金利0.697%にて計算
-
所在地
神戸市垂水区多聞台1丁目
-
交通
JR「舞子」駅 バス20分 「本多聞2丁目」停 徒歩3分
-
土地面積
62.85㎡
-
建物面積
62.16㎡
-
地目
宅地
-
用途地域
第一種低層住居専用地域
-
道路
北西側4.2m幅
-
建ぺい率・容積率
50% / 100%
-
私道負担
なし
-
構造
木造2階建
-
築年月
1997年7月
-
現況
空家
-
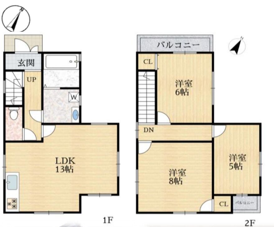
間取り
3LDK
-
インフラ
公共上下水・関西電力・都市ガス
-
設備
温水洗浄便座・小学校が近い・閑静な住宅街
-
取引態様
仲介
-
備考
-
情報更新日
2025年11月30日
関連物件
「中古戸建」で探す
「垂水区」で探す
LocoClub
限定公開の物件情報をお届け
LocoClubでは、登録してくださった方限定でネットに掲載出来ない非公開物件を公開しております。
物件は毎日更新中。
非公開物件の他にも、インスタライブなどのイベント情報も配信しております。
LINE友だち追加するだけの簡単登録です。










































































