神戸市垂水区多聞台5丁目 中古戸建
価格
3,480
万円
毎月
93,398
円
頭金・ボーナス0円 35年間
※返済例は変動金利0.697%にて計算
物件写真
価格
3,480
万円
毎月
93,398
円
頭金・ボーナス0円 35年間
※返済例は変動金利0.697%にて計算
- 【開放的】天井が高く、開放感あふれるリビングが魅力の5LDK!
- 消臭・調湿効果で快適な住環境を保てるお家、収納スペースも多くすっきり片付く!
- ワイドバルコニーは夏にお子様用のプールを出したり洗濯物もゆったり干せる広さ
- 駐車並列2台(前道6.2m) 多聞台小学校徒歩6分・神陵台中学校
基本情報
価格
3,480
万円
毎月
93,398
円
頭金・ボーナス0円 35年間
※返済例は変動金利0.697%にて計算
-
所在地
神戸市垂水区多聞台5丁目
-
交通
JR「舞子」駅 バス19分 「多聞台4丁目」停 徒歩3分
-
土地面積
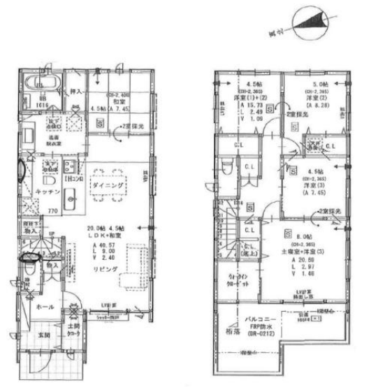
146.16㎡
-
建物面積
116.75㎡
-
地目
宅地
-
用途地域
第一種低層住居専用地域
-
道路
南東側6.2m幅
-
建ぺい率・容積率
50% / 100%
-
私道負担
なし
-
構造
木造2階建
-
築年月
2018年11月
-
現況
空家
-
間取り
5LDK
-
インフラ
公共上下水・関西電力・都市ガス
-
設備
食器洗乾燥機・浴室乾燥機・温水洗浄便座・小学校が近い・閑静な住宅街
-
取引態様
仲介
-
備考
-
情報更新日
2025年12月18日
関連物件
「中古戸建」で探す
「垂水区」で探す
LocoClub
限定公開の物件情報をお届け
LocoClubでは、登録してくださった方限定でネットに掲載出来ない非公開物件を公開しております。
物件は毎日更新中。
非公開物件の他にも、インスタライブなどのイベント情報も配信しております。
LINE友だち追加するだけの簡単登録です。



















































































