神戸市須磨区潮見台町 新築戸建
価格
4,980
万円
毎月
137,009
円
頭金・ボーナス0円 35年間
※返済例は変動金利0.845%にて計算
物件写真
価格
4,980
万円
毎月
137,009
円
頭金・ボーナス0円 35年間
※返済例は変動金利0.845%にて計算
- 認定長期優良住宅×太陽光パネルで家計も安心の暮らし
- 太陽光発電・乾太くん・ナノバブル等、先進の設備が標準装備!
- ローソン、ジョイエール、離宮公園、須磨郵便局が徒歩圏内で便利
- 駐車場2台(車種による)・西須磨小学校・鷹取中学校
基本情報
価格
4,980
万円
毎月
137,009
円
頭金・ボーナス0円 35年間
※返済例は変動金利0.845%にて計算
-
所在地
神戸市須磨区潮見台町4丁目
-
交通
山電「山陽須磨」駅徒歩7分、JR「須磨」駅徒歩9分
-
土地面積
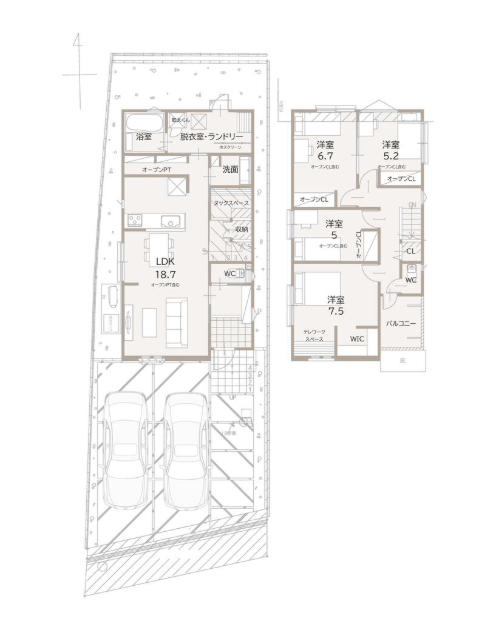
154.43㎡
-
建物面積
107.70㎡
-
地目
宅地
-
用途地域
第一種低層住居専用地域
-
道路
南側幅4.0m
-
建ぺい率・容積率
60% / 150%
-
私道負担
15.10㎡
-
構造
木造2階建
-
築年月
2026年6月
-
建築確認番号
第KS126-6120-50111号
-
現況
未完成
-
間取り
4LDK
-
インフラ
公共上下水・関西電力・都市ガス
-
設備
宅配ボックス・太陽光発電システム・ウッドデッキ・ワークスペース・床暖房・24時間換気・カウンターキッチン・システムキッチン・食器洗乾燥機・浴室乾燥機・温水洗浄便座・乾太くん・全居室収納・小学校が近い・閑静な住宅街・駅が近い・長期優良住宅認定物件
-
取引態様
仲介
-
備考
■【最高等級】耐震力1.5倍の頑強構造
■太陽光パネル標準搭載!一次エネルギー消費量等級6の省エネ性能で光熱費を削減!
■南向きで日当たり良好な18.7帖の広々LDK!
■ナノバブル水や乾太くんなど、家事の時間を豊かにする最新設備が満載の邸宅です
■JR須磨駅まで徒歩9分、山陽須磨駅へも徒歩7分の2WAYアクセスで通勤快適!
■第1種低層住居専用地域の閑静な街並み。子育て支援が手厚い神戸市で新生活を!
■駐車スペースは並列2台分
■神戸の海も近く、休日は須磨海岸でお散歩も楽しめる、最高のロケーション -
情報更新日
2026年4月10日
関連物件
「新築戸建」で探す
「須磨区」で探す
LocoClub
限定公開の物件情報をお届け
LocoClubでは、登録してくださった方限定でネットに掲載出来ない非公開物件を公開しております。
物件は毎日更新中。
非公開物件の他にも、インスタライブなどのイベント情報も配信しております。
LINE友だち追加するだけの簡単登録です。
























































































