
開催期間 12/27(土)~1/18(月)
開催時間 11:00~17:00

【明石のおすすめポイント】
- 子育て支援が全国トップクラス!中学生まで医療費が完全無料
- 商業施設・病院・スーパーが集約していて車がなくても生活が成り立つレベルの利便性
- JR明石駅から三ノ宮まで約15分、大阪まで約40分でアクセスが良い♪
- 治安が良く、落ち着いた街並み
- ファミリー層が多く、落ち着いた住宅街が中心。子育て世帯が暮らしやすい環境
■全6物件で開催
外観

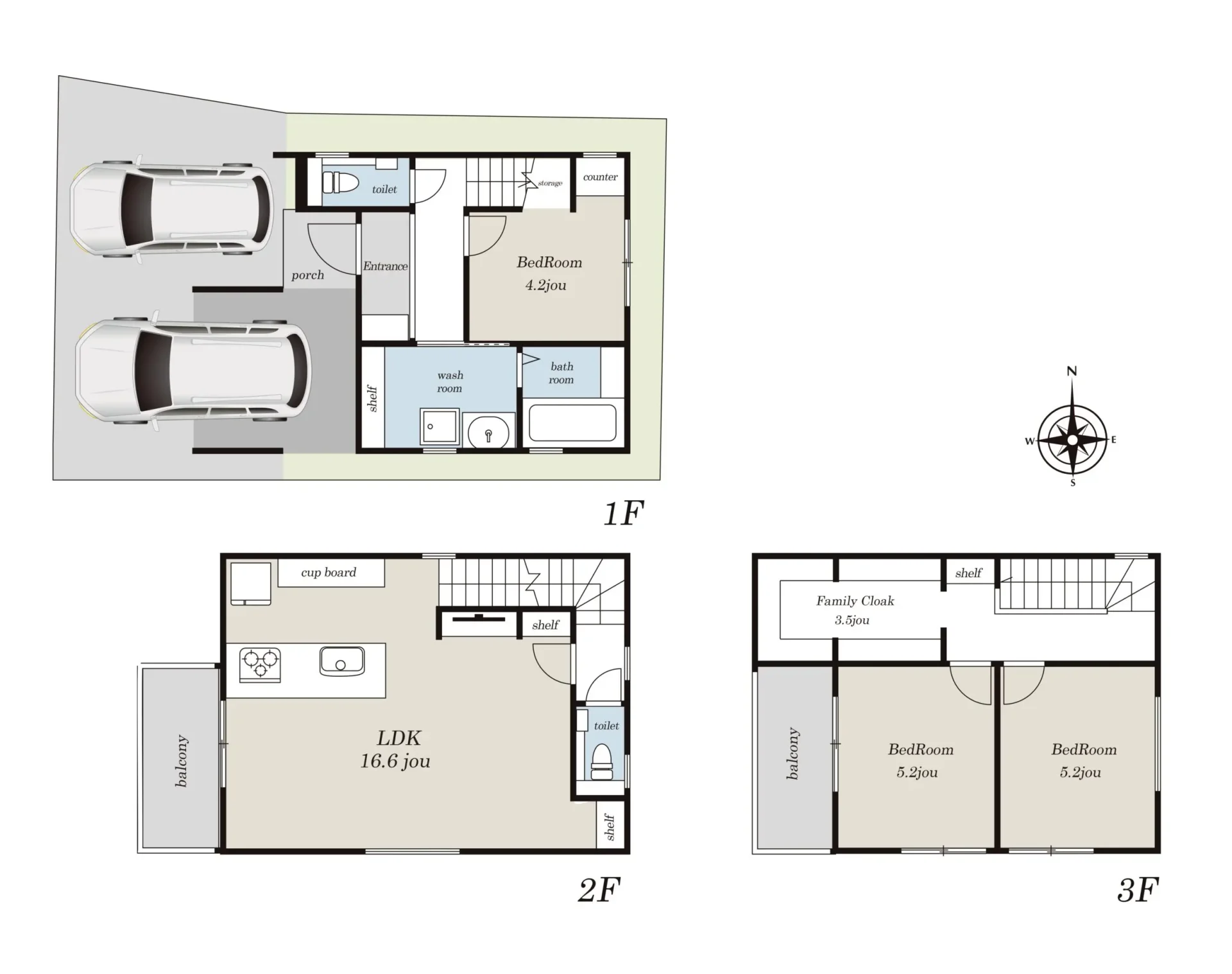
各物件のLDK

1.俺と私のLoco House明石太寺1期

山電「人丸前」駅まで徒歩9分。JR「明石」駅まで徒歩19分
価格:4,180万円
2.俺と私のLoco House清水5期

JR「土山」駅まで徒歩4分
価格:3,080 万円
3.俺と私のLoco House港町3期

JR「明石」駅まで徒歩12分
価格:4,180万円
4.俺と私のLoco House明石北王子2期B棟

山電「西新町」駅徒歩10分、JR「明石」駅徒歩18分
価格:3,580万円
5.俺と私のLoco House明石太寺天王町2期

山電「人丸」駅まで徒歩18分、JR「明石」駅まで徒歩23分
価格:3,980万円
6.俺と私のLoco House林6期

林崎松江海水浴場まで徒歩5分
価格:3,180万円

■Gallery









■注文住宅ではオプションの設備が標準設備



※俺と私のLoco House明石北王子2期B棟のみ制震ダンパーが設置されておりません。

OPEN HOUSE詳細情報
【物件概要】
俺と私のLoco House明石北王子2期B棟
俺と私のLoco House清水5期
俺と私のLoco House港町3期
俺と私のLoco House明石北王子2期B棟
俺と私のLoco House明石太寺天王町2期
俺と私のLoco House林6期
販売価格:3080万円~