
素材
建材にF☆☆☆☆素材を使い、有害物質を抑えて健康的な住まいに。
価格
毎月

価格
毎月

素材
建材にF☆☆☆☆素材を使い、有害物質を抑えて健康的な住まいに。

吹付断熱材
人体にやさしい素材を使用した吹付断熱で快適な住まいをつくります。

耐力面材
筋交と耐力面材を組み合わせ、四方を囲うことで地震や暴風への強度と耐震性を確保。

接合金物
柱と基礎・梁を金物で強固に接合し、地震や台風の揺れに耐える安心構造を実現。

地盤調査
地盤の状態を調査・必要に応じて補強し、安心の20年保証で暮らしを守ります。

ベタ基礎
耐久性に優れたベタ基礎と鉄筋構造で、長く安心して暮らせる家。

強度の高い集成材
シロアリを寄せ付けないヒノキと高品質集成材で、長く安心できる家を支えます。

換気構造
通気構造で湿気を逃がし、木材の腐食やシロアリの被害を防ぎます。

剛床工法
24mm合板を使った剛床工法で、地震の横揺れにも強い構造に。

耐火 石膏ボード
各室に不燃の石膏ボードを使用し、火災時の延焼を抑える。

耐火 外壁材
不燃材料に認定された外壁材は火に強く、隣家火災から住まいを守ります。
価格
毎月
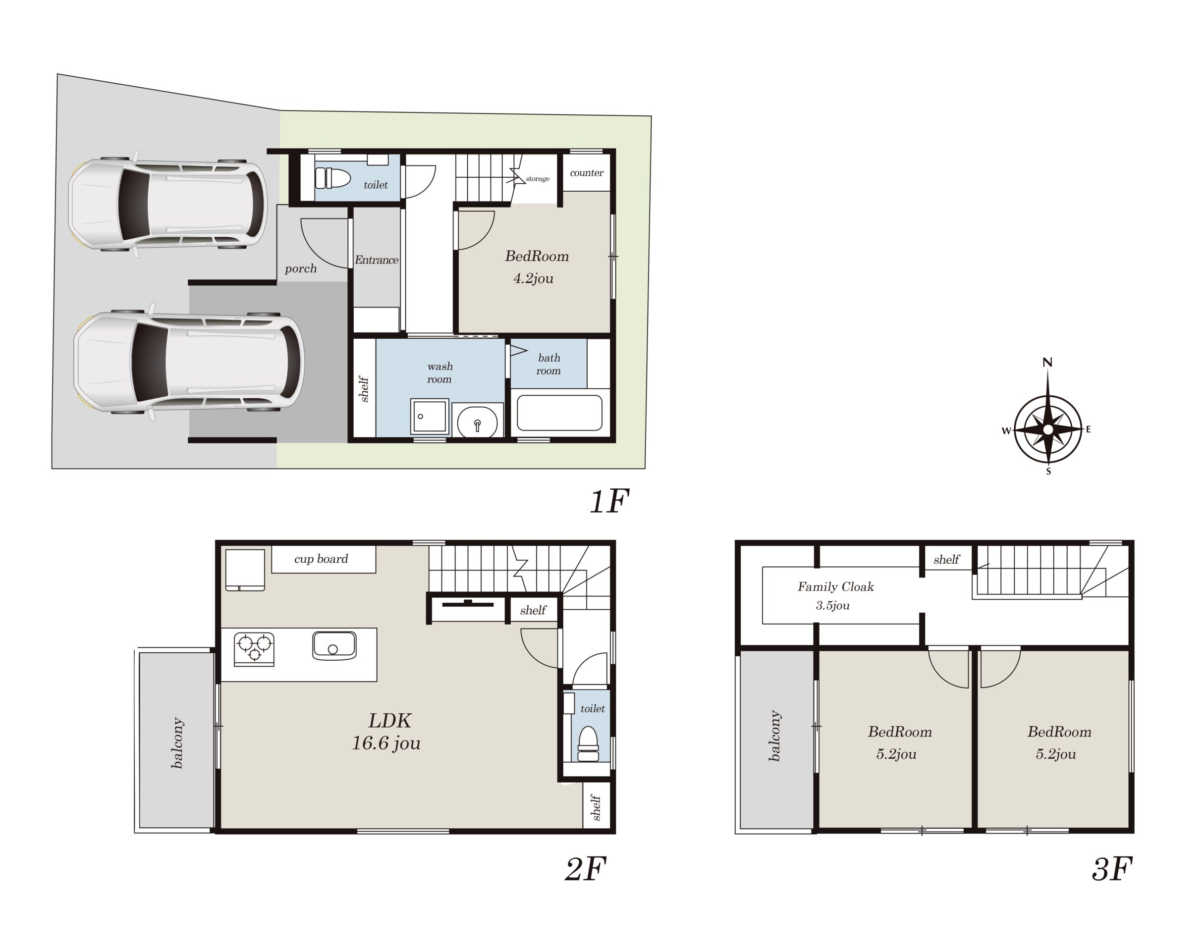
所在地
明石市北王子町
交通
山電「西新町」駅 徒歩10分
土地面積
66.91㎡
建物面積
97.85㎡
地目
宅地
用途地域
第一種住居地域
道路
西11.2m幅
建ぺい率・容積率
60% / 200%
私道負担
なし
構造
木造3階建
築年月
2024年10月
建築確認番号
第HK23-21946号
現況
完成
間取り
3LDK+FamilyCloak
インフラ
公共上下水・関西電力・都市ガス
設備
リビング階段・食器洗乾燥機・カップボード・浴室乾燥機・温水洗浄便座・ファミリークローク・ウォークインクロゼット・小学校が近い
取引態様
売主
備考
情報更新日
2025年12月1日
LocoClub
LocoClubでは、登録してくださった方限定でネットに掲載出来ない非公開物件を公開しております。
物件は毎日更新中。
非公開物件の他にも、インスタライブなどのイベント情報も配信しております。
LINE友だち追加するだけの簡単登録です。
開発者コメント
俺と私のLoco House(ロコハウス)明石北王子2期B棟は、白色がベースの外観が特徴的な3階建ての3LDK新築戸建です。 16.6帖の広々としたLDKは2階にあるため開放感があり、お子さんとのコミュニケーションが弾みます。 キッチンには食器洗乾燥機やカップボードが標準装備され、家事の効率化をサポートします。 浴室には乾燥機が備え付けられており、天候に左右されずに洗濯物を乾かすことが可能です 3.5帖の大容量ファミリークロークを設置しており、家族みんなの衣類や荷物をまとめて収納でき、各居室をすっきりと保てます。 駐車スペースは並列で2台分を確保しており、車を複数所有する家庭にも対応可能です。